ГлавнаяГотовый арендный бизнес — Краснофлотцев ул., 7

Краснофлотцев ул., 7,
112.00 м2

11 500 000 руб.

102678 руб./м2

Следить за ценой


Площадь: 112.00 м2

Окупаемость: по запросу


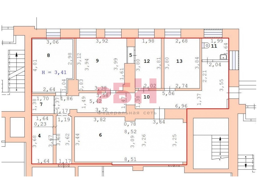
Продается универсальное нежилое помещение общей площадью 112,0 кв. м.
Без комиссии для покупателей.

- Универсальное нежилое помещение расположено в тихой центральной части микрорайона Эльмаш.
- Хорошая транспортная доступность: до ближайшей остановки 5 мин. пешком, до метро "Уралмаш" - 10 минут пешком.
- Доступный выезд в центр города, на объездную дорогу и ЕКАД.
- Развитая инфраструктура. В шаговой доступности Администрация Орджоникидзевского района, Министерство социальной политики, районная налоговая инспекция, три спортивных школы, три общеобразовательных школы и гимназии, детские сады, продуктовый сетевой ритейлер.
- Общая площадь 112 кв. м.
- Отдельный вход со двора.
- Возможно размещение вывески на фасаде.
- Кабинетная планировка с возможностью перепланировки под собственные потребности.
- Высота потолков 3,5 метров.
- Мощности по электроэнергии - 15кВт.
- Парковка вдоль дома и во дворе - всегда есть свободные парковочные места.

В НАСТОЯЩЕЕ ВРЕМЯ ЕСТЬ АРЕНДАТОР со стабильным доходом.
При текущем арендном потоке окупаемость менее 10,7 лет.
При ежегодной индексации арендной ставки на 10% срок окупаемости составит 7,5 лет.

Помещение может быть использовано как пассивный доход или перепрофилировано под любой вид деятельности: офис или представительство компании, хостел, офис + склад продовольственных и непродовольственных товаров, швейное производство, магазин, бытовые услуги населению, спортивный центр и прочее.

Стоимость объекта: 11 500 000 рублей.

Более подробную информацию уточняйте у наших специалистов.
------------------------------------------------------
"Регион Бизнес Недвижимость".
Коммерческая недвижимость
Без комиссии для покупателей
Арт. 51618976

Специалист

Ивченко Олег

+7 996 186 65 63

или оставьте ваш номер,
и я перезвоню в течение 5 минут

Согласен с Политикой конфинденциальности и с Политикой оператора в отношении обработки персональных данных

Отправляя заявку вы соглашаетесь на обработку персональных данных

Похожие объекты

Посмотреть другие объявления в этой категории