ГлавнаяГотовый арендный бизнес — Кузнечная ул., 79

Кузнечная ул., 79,
461.90 м2

79 650 000 руб.

172439 руб./м2

Следить за ценой


Площадь: 461.90 м2

Окупаемость, лет: 9.25


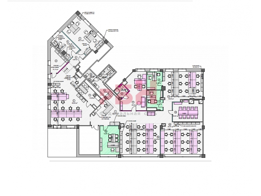
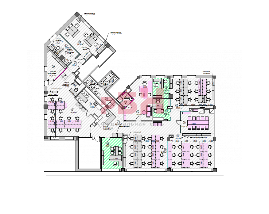
ПРОДАЕТСЯ офисное помещение 461,9 кв.м.

Без комиссии для покупателей

- расположено на 1 и 2 этаже;
- отдельная входная группа (вход с улицы, 1 этаж);
- общая площадь помещения составляет 461,9 кв.м;
- высота потолков - 3,3 м;
- выделенная электрическая мощность 30 кВт;
- выполнен дизайнерский ремонт;
- инженерная разводка электрических сетей, освещения и вентиляции выполнены в соответствие с проектом;
- имеется приточно-вытяжная вентиляция с подогревом входящего потока воздуха, кондиционеры;
- санузел с душем для руководителя;
- 3 санузла для сотрудников;
- 15 минут пешком до метро "Динамо", 240 м до остановок трамвая и автобуса;
- 10 парковочных мест на территории двора (въезд по карточкам), есть бесплатная парковка перед зданием и платная через дорогу (въезд 100 руб., места есть всегда);
- большие окна, много естественного света в кабинетах;
- развитая инфраструктура прилегающей территории – рядом расположены магазин "Лента", медицинский центр, фитнес центр, аптека, кофейня, пекарня и много другое;
- здание расположено в историческом центре Екатеринбурга, в месте, удобном для эффективного ведения бизнеса.

Помещение сдано в аренду, может использоваться как арендный бизнес.

Стоимость помещения – 79 650 000 (Семьдесят девять миллионов шестьсот пятьдесят тысяч) рублей.
Более подробную информацию уточняйте у наших специалистов.
------------------------------------------------------
"Регион Бизнес Недвижимость"
Коммерческая недвижимость
Без комиссии для покупателей
Арт. 67586418

Специалист

Лазарев Евгений

+7 996 186 65 63

или оставьте ваш номер,
и я перезвоню в течение 5 минут

Согласен с Политикой конфинденциальности и с Политикой оператора в отношении обработки персональных данных

Отправляя заявку вы соглашаетесь на обработку персональных данных

Похожие объекты

Посмотреть другие объявления в этой категории