ГлавнаяГотовый арендный бизнес — Социалистическая ул., 100

Социалистическая ул., 100,
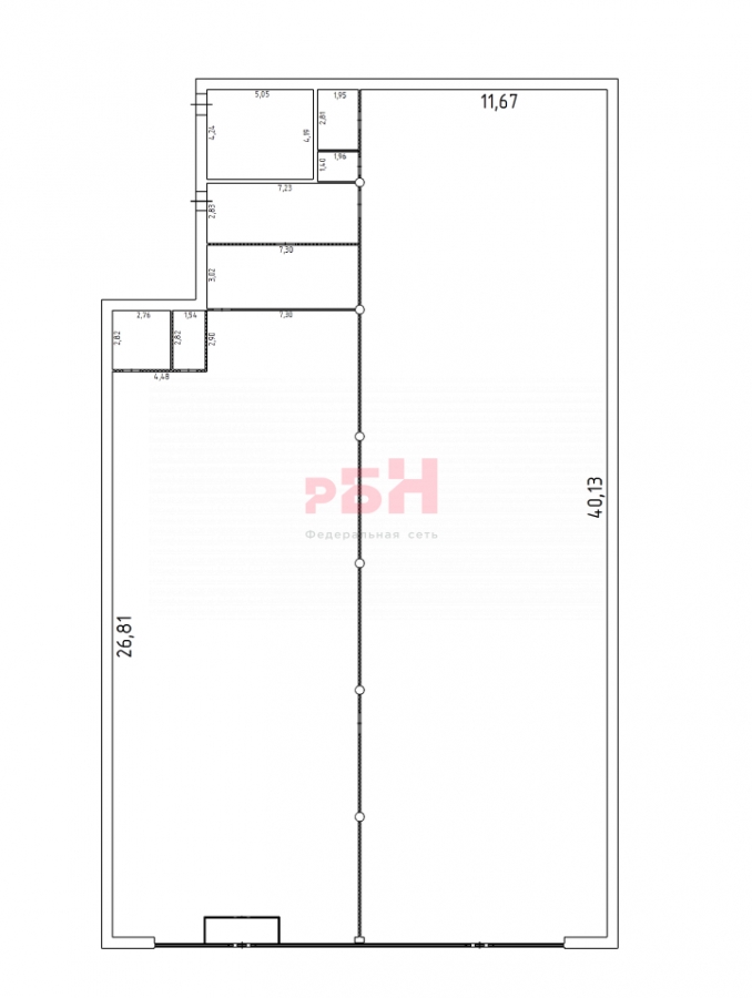
895.70 м2

32 000 000 руб.

35726 руб./м2

Следить за ценой


Площадь: 895.70 м2

Окупаемость, лет: 5.6


ПРЕДЛАГАЕТСЯ НА ПРОДАЖУ ОТДЕЛЬНО СТОЯЩЕЕ ЗДАНИЕ общей площадью 895.7 кв.м.

Без комиссии для покупателей

- Помещение расположено в центральной части г. Туринск, на оживленной торговой улице;
- Здание отдельно стоящее, 1 этаж;
- В соседних помещениях "Магнит", ТЦ "Бишкек", аптека "Апрель", "Садхозторг", магазин "DNS" и т.д.
- пол -керамическая плитка, стены - покрашены, потолок - армстронг;
- Высота потолков 3,95 м.;
- Мощность 15 квт. с возможностью увеличения;
- Естественная вентиляция;
- Открытая парковка перед зданием;
- Сдано надежным арендаторам;
- Земля в собственности.

Стоимость продажи 32 000 000 рублей. Сдано в аренду.

Более подробную информацию уточняйте у наших специалистов.
------------------------------------------------------
"Регион Бизнес Недвижимость"
Коммерческая недвижимость
Без комиссии для покупателей
Арт. 88290255

Специалист

Перетокина Анна

+7 996 186 65 63

или оставьте ваш номер,
и я перезвоню в течение 5 минут

Согласен с Политикой конфинденциальности и с Политикой оператора в отношении обработки персональных данных

Отправляя заявку вы соглашаетесь на обработку персональных данных

Похожие объекты

Посмотреть другие объявления в этой категории