ГлавнаяКаталог Офис — Малышева ул., 29

Малышева ул., 29, 177.40 м 2

354 800 ₽
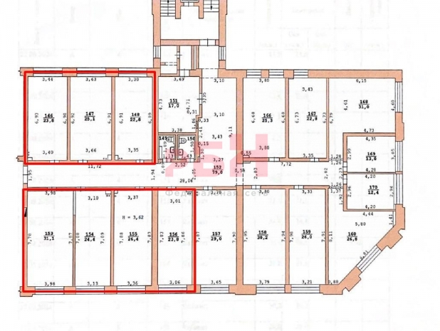
Площадь: 177.40м 2 Этаж 4 из 5
2 000 ₽/м 2
Гортовина Яна
Гортовина Яна
Специалист
или оставьте ваш номер,
и я перезвоню в течение 5 минут
Нажимая на кнопку, вы даете своё согласие на обработку персональных данных и соглашаетесь с политикой конфиденциальности
Предлагается в аренду офисное помещение с современным ремонтом в самом центре города с витражными окнами. Отличная транспортная доступность.

Без комиссии для арендаторов.

- Офис расположен на 2 этаже БЦ на Малышева 29 в центре города в 5 минутах от метро;
- Транспортная доступность: рядом остановки общественного транспорта -маршрутное такси, троллейбусы, автобусы, метро;
- Рядом с БЦ располагаются рестораны, кафе, гостиницы, магазины, Администрация города;
- Доступ в БЦ 24/7;
- Общая площадь 177.4 кв.м., кабинетная планировка;
- Состояние: помещения после ремонта, пол ламинат;
- Парковка платная;

Офис подойдёт под: офис компании, клиентский офис, студию красоты, фотостудию и др.

Стоимость аренды: 354 800 руб/мес (2000 руб/м.кв.) ,
Коммунальные платежи не включены в стоимость аренды.

Более подробную информацию уточняйте у наших специалистов.
------------------------------------------------------
"Регион Бизнес Недвижимость".
Коммерческая недвижимость.
Без комиссии для арендаторов.
Арт. 108564064
Расположение

Малышева ул., 29

Похожие объекты

Посмотреть другие объявления в этой категории