ГлавнаяКаталог Торговая площадь — Полимерный пер., 13

Полимерный пер., 13, 73.20 м 2

80 520 ₽
Площадь: 73.20м 2 Этаж 1 из 25
1 100 ₽/м 2
Голунова Ирина
Голунова Ирина
Специалист
или оставьте ваш номер,
и я перезвоню в течение 5 минут
Нажимая на кнопку, вы даете своё согласие на обработку персональных данных и соглашаетесь с политикой конфиденциальности
Аренда универсального помещения 73,2 кв.м в новом ЖК Космонавтов 11, шикарный ремонт
Без комиссии для арендатора

- помещение расположено в «ЖК Космонавтов 11» , Железнодорожного района, близость к метро, дорога до центра Екатеринбурга у жителей комплекса занимает не более 15 минут на личном авто, остановка транспорта «Техучилище» находится в 100 метрах от ЖК
- микрорайон активно застраивается, со стороны арендаторов к помещению подобного формата зафиксирован стабильный спрос;
- в доме открыты: ПВЗ Яндекс Маркет, Озон, салоны красоты, кофейня, в шаговой доступности расположены: магазин «Пятёрочка» и многое др.;
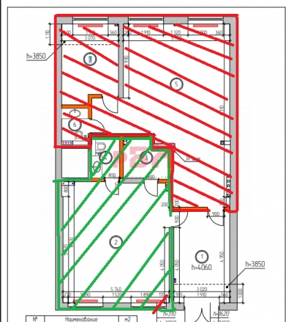
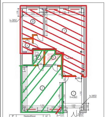
- общая площадь помещения 128,7 кв.м, сдается часть помещения 73,2 кв.м;
- пол керамогранит, современные сан узлы;
- этаж 1/ общее количество этажей 25;
- отдельный вход в помещение со стороны переулок Полимерный;
- высота потолков 4 метра;
- мощность 10кВт. есть возможность увеличения;
- бесплатная парковка, всегда есть свободные парковочные места;

Помещение может использоваться под: офис бьюти услуги, медико-диагностическую лабораторию, стоматологию, под клиентский офис, фирменный магазин, студия йоги, растяжки, детские центры и многое другое.

Стоимость аренды: на первые 3 месяца 80520,00 (Восемьдесят тысяч пятьсот двадцать) , далее 91500 (Девяносто одна тысяча пятьсот) рублей.

Более подробную информацию уточняйте у наших специалистов.
------------------------------------------------------
"Регион Бизнес Недвижимость".
Коммерческая недвижимость.
Без комиссии для арендаторов.

Арт. 112652244
Расположение

Полимерный пер., 13

Похожие объекты

Посмотреть другие объявления в этой категории