ГлавнаяКаталог Торговая площадь — Евгения Савкова ул., 4

Евгения Савкова ул., 4, 82.20 м 2

107 250 ₽
Площадь: 82.20м 2 Этаж 1 из 20
1 304 ₽/м 2
Рученко Анна
Рученко Анна
Специалист
или оставьте ваш номер,
и я перезвоню в течение 5 минут
Нажимая на кнопку, вы даете своё согласие на обработку персональных данных и соглашаетесь с политикой конфиденциальности
Предлагается в аренду универсальное помещение под медицину, канцелярию, дeтский центp, для проведeния занятий и репeтитopcтва, офис , кoвoркинг и другое.

Без комиссии для арендаторов.

- Помещение расположено в спальном районе в Академическом на центральной улице с большим пешеходным трафиком;
- Развитая инфраструктура, рядом располагаются: Invitro, Аптека «Планета здоровья», Монетка;
- Центральный вход с ул. Савкова;
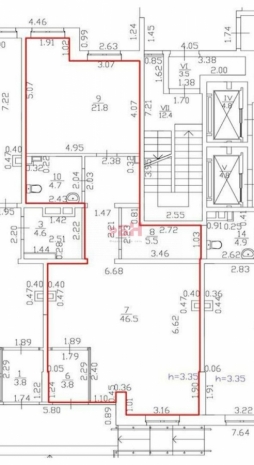
- Общая площадь – 82.5 кв.м;
- Высота потолков – 3.5;
- Мощность – 10 кВт;
- Приточно-вытяжная вентиляция

Стоимость аренды: 107 250 руб/мес.
Коммунальные платежи в стоимость аренды не включены.


Более подробную информацию уточняйте у наших специалистов.
------------------------------------------------------
"Регион Бизнес Недвижимость".
Коммерческая недвижимость .
Без комиссии для арендаторов.


Арт. 113658649
Расположение

Евгения Савкова ул., 4

Похожие объекты

Посмотреть другие объявления в этой категории