Юмашева ул., 18, 28.80 м 2

3 300 000 ₽
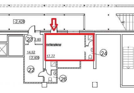
Площадь: 28.80м 2
114 583 ₽/м 2
Мавлютова Ольга
Мавлютова Ольга
Специалист
или оставьте ваш номер,
и я перезвоню в течение 5 минут
Нажимая на кнопку, вы даете своё согласие на обработку персональных данных и соглашаетесь с политикой конфиденциальности
Продаётся помещение 28,8 м² в центральной части города

Без комиссии для покупателей.

-расположено в районе ВИЗ в цокольном этаже 17-ти этажного ЖК;
-рядом расположен педагогический колледж, сетевые магазины, плотная жилая застройка;
-отдельная входная группа со стороны закрытого двора;
-площадь: 28,8 кв.м;
-контролируемый доступ, вход через домофон;
-хороший ремонт, санузел, кладовая;
-без обременений.
-свободная парковка вокруг дома;

Стоимость объекта: 3 300 000 руб.

Помещение подойдет под: маникюрный салон, тату салон, офис, обучающий центр для репетиторов, ателье, кабинет психолога, кладовую, груминг и т.д.

Более подробную информацию уточняйте у наших специалистов.
------------------------------------------------------
"Регион Бизнес Недвижимость".
Коммерческая недвижимость.
Без комиссии для покупателей.
Арт. 114361198
Расположение

Юмашева ул., 18

Похожие объекты

Посмотреть другие объявления в этой категории