ГлавнаяКаталог Офис — Ленина проспект, 52, к 3, литера а

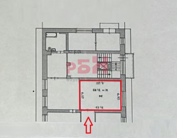
Ленина проспект, 52, к 3, литера а, 23.60 м 2

29 000 ₽
Площадь: 23.60м 2 Этаж 1 из 6
1 228 ₽/м 2
Перетокина Анна
Перетокина Анна
Специалист
или оставьте ваш номер,
и я перезвоню в течение 5 минут
Нажимая на кнопку, вы даете своё согласие на обработку персональных данных и соглашаетесь с политикой конфиденциальности
ПРЕДЛАГАЕТСЯ В АРЕНДУ ПОМЕЩЕНИЕ площадью 23,6 кв.м.
Без комиссии для арендаторов

- расположено в центральной культурно-исторической части г. Екатеринбург;
- тихий двор, без уличного шума и проходного трафика — идеален для спокойной работы и приёма клиентов;
- отличная транспортная доступность: рядом остановки общественного транспорта «Бажова» и «Дом Кино», все виды общественного транспорта;
- развитая инфраструктура. Рядом жилые дома, Свердловская киностудия, ТЦ «Сити Центр», ресторан «Хмели Сунели», «Бургер Кинг», лицей № 110, магазины, кафе-пекарни и проч;
- на 1м этаже 6-ти этажного жилого дома;
- пол керамогранит, стены покрашены, потолок Армстронг;
- санузел на этаже;
- высота потолков – 2,83 м;
- припарковаться можно во дворе, заезжая с ул. Бажова, или около Свердловской киностудии;

Помещение идеально подойдет для кабинета, студии, офиса или сферы услуг.

Стоимость аренды 29 000 (1228 руб./кв.м.), Коммунальные услуги оплачиваются отдельно.

Более подробную информацию уточняйте у наших специалистов
------------------------------------------------------
"Регион Бизнес Недвижимость"
Коммерческая недвижимость
Без комиссии для арендаторов
Арт. 117830840
Расположение

Ленина проспект, 52, к 3, литера а

Похожие объекты

Посмотреть другие объявления в этой категории