ГлавнаяКаталог Торговая площадь — Таватуйская ул., 14, к 3, литера А

Таватуйская ул., 14, к 3, литера А, 55.10 м 2

55 000 ₽
Площадь: 55.10м 2 Этаж 1 из 25
998 ₽/м 2
Перетокина Анна
Перетокина Анна
Специалист
или оставьте ваш номер,
и я перезвоню в течение 5 минут
Нажимая на кнопку, вы даете своё согласие на обработку персональных данных и соглашаетесь с политикой конфиденциальности
Торговое помещение в Железнодорожном р-не , район Новая Сортировка, новый ЖК "Rauta", с высокими потолками

Без комиссии для арендаторов.

- помещение расположено в зоне плотной жилой застройки в активно развивающемся квартале Железнодорожного района, застройщик Группа "Эталон";
- рядом застраиваются кварталы: ЖК "Астон", ЖК "Депо";
- развитая инфраструктура, рядом расположены "Магнит Семейный", "Чижик", Красное и белое, "ЖизньМарт", "Строительный двор", спортивно-юношеская секция, м-н Магнит и другие;
- в непосредственной близости находятся остановки общественного транспорта;
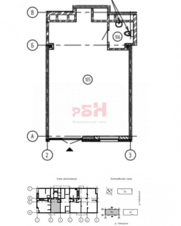
- помещение расположено на 1м первом этаже 25-ти этажного здания;
- общая площадь 55,1 кв.м.;
- место под вывеску;
- отдельный вход с улицы Таватуйская;
- высота потолков 4 м.;
- мощность 15 кВт;
- приточно-вытяжная вентиляция;
- предоставляются арендные каникулы.

Идеально подойдет под парикмахерскую, зоомагазин, аптеку, медицинскую лабораторию, ортопедию, магазин продовольственных и непродовольственных товаров, клиентский офис, офис продаж, образовательные услуги и другие направления бизнеса

Стоимость аренды: 55 000 руб. (Ставка на льготный период).
Коммунальные платежи оплачиваются отдельно.

Более подробную информацию уточняйте у наших специалистов.
------------------------------------------------------
"Регион Бизнес Недвижимость".
Коммерческая недвижимость
Без комиссии для арендаторов.
Арт. 128548131
Расположение

Таватуйская ул., 14, к 3, литера А

Похожие объекты

Посмотреть другие объявления в этой категории