ГлавнаяКаталог Торговая площадь — Октябрьской Революции ул., 15

Октябрьской Революции ул., 15, 114.00 м 2

80 000 ₽
Площадь: 114.00м 2 Этаж 1 из 3
701 ₽/м 2
Краснова Наталья
Специалист
или оставьте ваш номер,
и я перезвоню в течение 5 минут
Нажимая на кнопку, вы даете своё согласие на обработку персональных данных и соглашаетесь с политикой конфиденциальности
Аренда помещения 114 кв.м , центральная точка города, мощный трафик. Хороший ремонт. Входная группа выходит на центральную улицу, возможность установить рекламную вывеску.

Без комиссии для арендатора.

- расположено в центральной части города на первом этаже жилого дома.
- развита инфраструктура. Напротив большой торговый центр. До Ж/Д вокзала 7 минут пешком, 3 минуты на машине, 800 метров. Соседнее помещение занимает Сбербанк;
- рядом расположены остановки общественного транспорта: "Проспект строителей", "Ж/д вокзал".
- в этом же здании находится Сбербанк, магазины, студия балета, аптека, студия красоты, ПВЗ, и т.д. и т.п
- 1 этаж/ 3 этажный жилой дом;
- отдельный вход с улицы Октябрьской революции;
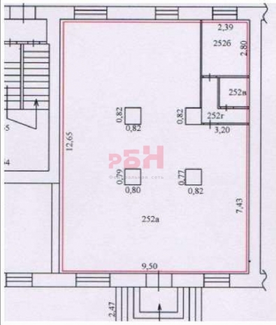
- общая площадь 114 кв м;
- помещение готово к работе сделан хороший ремонт: на полу керамическая плитка, стены покрашены, потолок покрашен;
- высота потолков 3 м;
- отделка помещения - офисная;
- Мощность по электроэнергии - 30 кВт;
- наземная парковка, рядом с помещением;
- мокрая точка имеется;
- санузел.

Помещение подойдет: для размещения федеральных компаний, салона красоты, банка, офиса. Помещение подходит для получения лицензий на торговлю алкоголем.

Стоимость аренды: 80 000 руб/месяц (702 руб./кв.м.) ,
Коммунальные платежи не включены в стоимость аренды.

Более подробную информацию уточняйте у наших специалистов.
------------------------------------------------------
"Регион Бизнес Недвижимость".
Коммерческая недвижимость.
Без комиссии для арендаторов.

Арт. 129539415
Расположение

Октябрьской Революции ул., 15

Похожие объекты

Посмотреть другие объявления в этой категории