Коммуны ул., 3, 1397.00 м 2

839 000 ₽
Площадь: 1397.00м 2 Этаж 1 из 4
600 ₽/м 2
Голунова Ирина
Голунова Ирина
Специалист
или оставьте ваш номер,
и я перезвоню в течение 5 минут
Нажимая на кнопку, вы даете своё согласие на обработку персональных данных и соглашаетесь с политикой конфиденциальности
Предлагается в аренду 1397 кв.м. в отдельно стоящем здании примыкающего к береговой линии реки, высокий уровень энергообеспечения, земельный участок в собственности.

Без комиссии для арендатора.

- помещение расположено на 1и 2, 3 этажах административного здания вблизи жилых массивов г.Первоуральск, на берегу пруда (Нижне-Шайтанское водохранилище).
- хорошая транспортная доступность: рядом остановка общественного транспорта
- рядом расположены: кафе «Хитрый лис», сеть пивоварен «Косулинская пивоварня», недалеко расположен парк «Дома новой культуры», «Инновационный культурный центр с кинозалом и конференц-залом, с и др.
- год постройки 1975г.
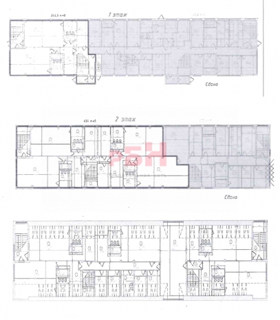
- площадь помещения 1397 м.кв, (часть 1 этажа – 244,5 кв.м , часть 2 этажа – 454 кв.м, 3 этаж -724 кв.м)
- высота потолков - 3м
- мощность всего здания 130 кВт
- центральные инженерные системы
- на территории расположены: мастерские и склад
- приточно-вытяжная вентиляция
- собственная парковка на участке у здания (35м/м)
Подойдет для реабилитационного центра, медицинского центра, образовательного, детского центра, колл-центра, и других видов бизнеса. Ранее размещался частный детский сад.

Стоимость аренды: 839000 руб/мес; 600 руб/кв.м

Коммунальные платежи в стоимость аренды не включены и оплачиваются отдельно
Более подробную информацию уточняйте у наших специалистов.
------------------------------------------------------
"Регион Бизнес Недвижимость".
Коммерческая недвижимость .
Без комиссии для арендаторов.


Арт. 129853771
Расположение

Коммуны ул., 3

Похожие объекты

Посмотреть другие объявления в этой категории