ГлавнаяКаталог Торговая площадь — Сурикова ул., 63, к 2

Сурикова ул., 63, к 2, 146.00 м 2

292 000 ₽
Площадь: 146.00м 2 Этаж 1 из 26
2 000 ₽/м 2
Мельникова Ольга
Мельникова Ольга
Специалист
или оставьте ваш номер,
и я перезвоню в течение 5 минут
Нажимая на кнопку, вы даете своё согласие на обработку персональных данных и соглашаетесь с политикой конфиденциальности
предлагается в аренду помещение в новом доме в районе Южного Автовокзала

Без комиссии для арендаторов

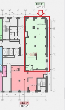
- Помещение находится на 1м этаже 26 этажного дома ЖК «Нескучный сад», построенного в 2023 году. Расположено в густонаселенном районе Автовокзал г. Екатеринбурга;
- Высокий уровень городского общественного транспорта, в том числе наличие в шаговой доступности станции метро «Чкаловская». Высокий автомобильный и пешеходный трафик;
- Развитая инфраструктура, рядом расположен Южный Автовокзал, множество магазинов: "Верный", "Магнит косметик", плотная жилая застройка;
- Отдельный вход с улицы Авиационная;
- Общая площадь 146 кв.м;
- Высота потолков 4м;
- Ремонт: на полу керамогранит, стены и потолок окрашены;
- Электроснабжение 52 квт;
- Есть мокрая точка;
- Перед зданием открытая парковка

Сдаваемое помещение подойдет магазин непродовольственных товаров, аптеку, кафе, пекарню и проч.

Стоимость аренды 292 000 рублей в месяц (2000 руб/кв.м)
Коммунальные платежи оплачиваются отдельно.

Более подробную информацию уточняйте у наших специалистов.
------------------------------------------------------
"Регион Бизнес Недвижимость".
Коммерческая недвижимость
Без комиссии для арендаторов.
Арт. 56517171
Расположение

Сурикова ул., 63, к 2

Похожие объекты

Посмотреть другие объявления в этой категории