 
                                                                            - пол - плитка, стены покрашены, потолок - армстронг;
- Высота потолков 3 м.;
- Мощность 60 квт.;
- Приточно-вытяжная система вентиляции;
- Есть место для погрузки/разгрузки
- Свободная парковка перед зданием;
 
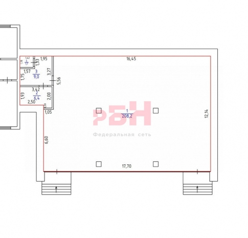
Стоимость: 8 000 000 ₽ (35 508 руб. за м²). 
 Более подробную информацию уточняйте у наших специалистов
 ------------------------------------------------------
 "Регион Бизнес Недвижимость"
 Коммерческая недвижимость
 Без комиссии для покупателей
 
Арт. 71558197                
Чкалова ул., 60