ГлавнаяКаталог Торговая площадь — Краснолесья ул., 16, к 1

Краснолесья ул., 16, к 1, 66.00 м 2

100 000 ₽
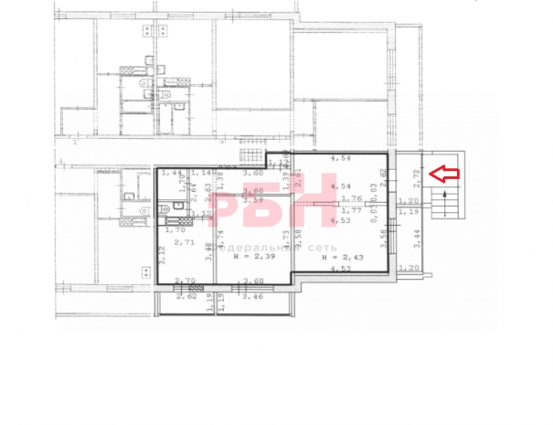
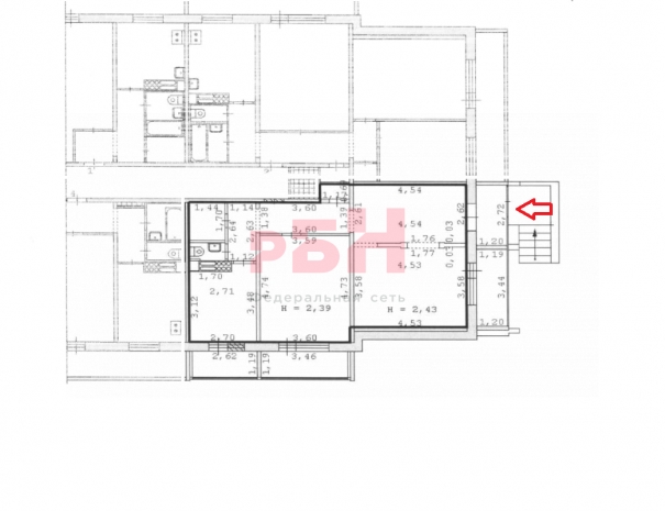
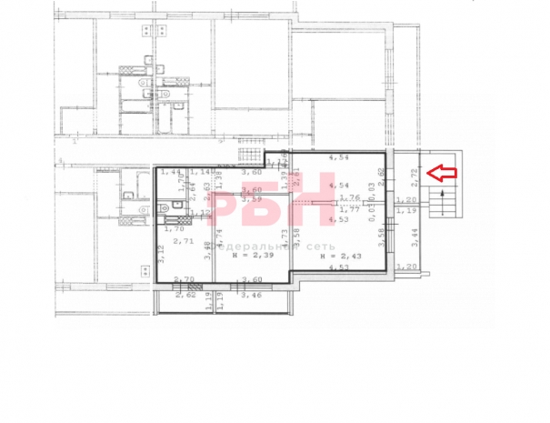
Площадь: 66.00м 2 Этаж 1 из 16
1 515 ₽/м 2
Хохлова Елена
Хохлова Елена
Специалист
или оставьте ваш номер,
и я перезвоню в течение 5 минут
Нажимая на кнопку, вы даете своё согласие на обработку персональных данных и соглашаетесь с политикой конфиденциальности
Предлагается в аренду помещение свободного назначения общей площадью 66 кв.м.
Без комиссии для арендаторов.

-Помещение расположено на первом этаже жилого дома, рядом с ТЦ "Краснолесье";
-в шаговой доступности остановки общественного наземного транспорта;
-высокий автомобильный и пешеходный трафик;
-отдельный вход с улицы Краснолесья;
-место под вывеску;
-площадь 66 кв.м;
-собственный санузел;
-центральное отопление;
-пожарная и охранная сигнализации;
-заведенная мощность - 10 кВт;
-индивидуальные счетчики ХВС, ГВС и э/э;
-высота потолка – 2,4м;
-возможность подключиться к интернет-провайдерам;
-парковка у здания.

Помещение подойдет под магазин, салон красоты, сервисный центр, офис компании, пункт выдачи и др.

Стоимость аренды: 100 000 руб./мес. (1 515 руб/кв.м)
Коммунальные платежи оплачиваются дополнительно.
Предусмотрен обеспечительный платеж.

Более подробную информацию уточняйте у наших специалистов.
------------------------------------------------------
"Регион Бизнес Недвижимость".
Коммерческая недвижимость.
Без комиссии для арендаторов.
Арт. 84622457
Расположение

Краснолесья ул., 16, к 1

Похожие объекты

Посмотреть другие объявления в этой категории