Космонавтов проспект, 15, 214.50 м 2

150 000 ₽
Площадь: 214.50м 2 Этаж 1 из 2
699 ₽/м 2
Мельникова Ольга
Мельникова Ольга
Специалист
или оставьте ваш номер,
и я перезвоню в течение 5 минут
Нажимая на кнопку, вы даете своё согласие на обработку персональных данных и соглашаетесь с политикой конфиденциальности
ПРЕДЛАГАЕТСЯ в АРЕНДУ ПОМЕЩЕНИЕ общей площадью 214,5 м2
Без комиссии для арендаторов.

ОСНОВНЫЕ ХАРАКТЕРИСТИКИ И ПРЕИМУЩЕСТВА ПОМЕЩЕНИЯ:
-Помещение расположено в Железнодорожном районе на перекрестке улиц Космонавтов-Артинская;
-Хорошая транспортная доступность, рядом остановка общественного транспорта и станция метро;
-В соседях находится магазин "МАСЛОМАРТ", "КОМПЛЕКС ПЛЮС" и автосервис "ФИНИК", кофейня "BITTERSWEET";
-Высокий пешеходный и автомобильный трафик;
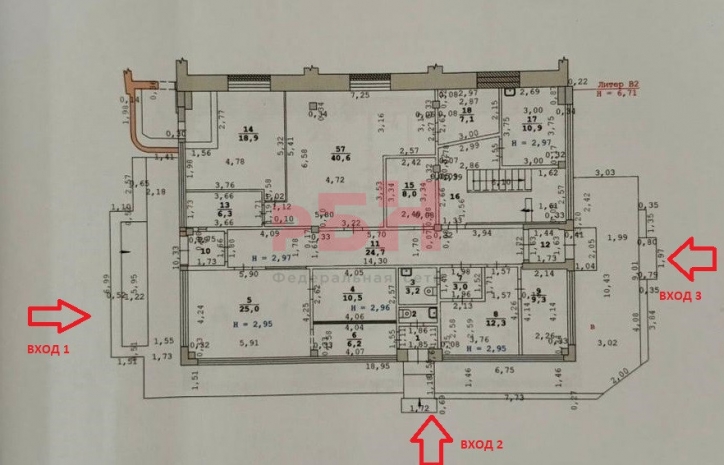
-Первый этаж. Общая площадь 214,5 м2;
-3 входа, один с ул. Артинская и 2 входа со двора. Место под разгрузку;
-Высота потолков 3 метра;
-Мощность 50кВт (возможно увеличение до 100 кВт);
-Ремонт: нужен косметический ремонт и капитальный в сан.узлах;
-Не несущие конструкции (перегородки) можно демонтировать;
-Своя парковка на 10 автомобилей.

Стоимость аренды: 150 000 руб/мес. Арендные каникулы.
Коммунальные платежи в стоимость аренды не включены.

Помещение подойдет для Автомагазина, Службы доставки, Офиса, Пункт выдачи, Магазин непродовольственных товаров, Строительный магазин.

Более подробную информацию уточняйте у наших специалистов.
------------------------------------------------------
"Регион Бизнес Недвижимость".
Коммерческая недвижимость.
Без комиссии для арендаторов.

Арт. 88633932
Расположение

Космонавтов проспект, 15

Похожие объекты

Посмотреть другие объявления в этой категории