Вилонова ул., 8, 155.70 м 2

186 840 ₽
Площадь: 155.70м 2 Этаж 1 из 25
1 200 ₽/м 2
Голунова Ирина
Голунова Ирина
Специалист
или оставьте ваш номер,
и я перезвоню в течение 5 минут
Нажимая на кнопку, вы даете своё согласие на обработку персональных данных и соглашаетесь с политикой конфиденциальности
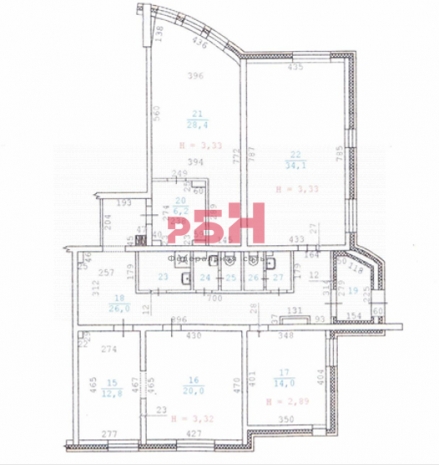
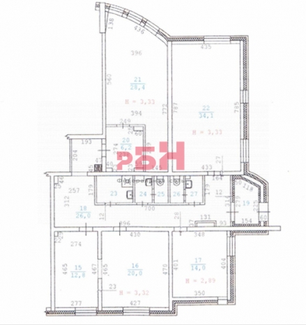
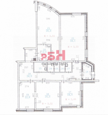
ПРЕДЛАГАЕТСЯ в АРЕНДУ ПОМЕЩЕНИЕ общей площадью 155,7 кв.м.
Без комиссии для арендаторов.

- расположено в Кировском районе, густонаселенной части с высокой плотность застройки жилья. В радиусе 500 метров постоянно проживает: 17 939 человек
- в шаговой доступности остановки общественного транспорта
- развитая инфраструктура, рядом располагаются: в 100м от входа находится ЦГБ №7 Кировского района, в 600м ТРЦ Парк Хаус, д/с №588,536, школа №165
- помещение находится на 1м этаже 25и этажного жилого дома
- общая площадь 155,7 кв.м.
- центральный вход с торца дома ул. Вилонова 8
- год постройки 2008
- планировка: кабинетная нарезка
- высота потолков 3,33 м
- мощность 10,7 кВт (есть возможность увеличения)
- приточно-вытяжная вентиляция
- парковка: свободная

Предлагаемое помещение подойдет под: медицинский центр, клинико-диагностические лаборатории, магазин торговой марки, детские центры, косметологические услуги , офис компании и многое другое.

Стоимость аренды: 186 840 руб. Коммунальные платежи в стоимость аренды не включены.

Более подробную информацию уточняйте у наших специалистов.
------------------------------------------------------
"Регион Бизнес Недвижимость".
Коммерческая недвижимость .
Без комиссии для арендаторов.

Арт. 95468083
Расположение

Вилонова ул., 8

Похожие объекты

Посмотреть другие объявления в этой категории