ГлавнаяКаталог Торговая площадь — Ленина ул., 89, к А

Ленина ул., 89, к А, 300.00 м 2

300 000 ₽
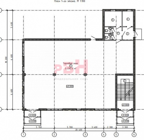
Площадь: 300.00м 2 Этаж 1 из 2
1 000 ₽/м 2
Мельникова Ольга
Мельникова Ольга
Специалист
или оставьте ваш номер,
и я перезвоню в течение 5 минут
Нажимая на кнопку, вы даете своё согласие на обработку персональных данных и соглашаетесь с политикой конфиденциальности
Предлагается в аренду первый этаж в здании в центре г. Алапаевск, 300 кв.м.
Сдача осенью 2025 г., сейчас этап строительства.

Без комиссии для арендатора.

ОСНОВНЫЕ ХАРАКТЕРИСТИКИ И ПРЕИМУЩЕСТВА ПОМЕЩЕНИЯ:
- находится в центре г. Алапаевск, улица Ленина;
- отличный пешеходный и автомобильный трафик
- развитая инфраструктура, рядом супермаркет "Монетка"
- общая площадь – 300 кв.м.
- возможно деление
- своя бесплатная парковка около здания

Помещение подойдет под магазин продовольственных и непродовольственных товаров, клинику, стоматологию, услуги и прочее

Стоимость аренды: 300 000 рублей,
Дополнительно оплачиваются коммунальные услуги

Более подробную информацию уточняйте у наших специалистов.
------------------------------------------------------
"Регион Бизнес Недвижимость".
Коммерческая недвижимость .
Без комиссии для арендаторов.
Арт. 97871658
Расположение

Ленина ул., 89, к А

Похожие объекты

Посмотреть другие объявления в этой категории