ГлавнаяГотовый арендный бизнес — Бабушкина ул., 31

Бабушкина ул., 31,
73.00 м2

11 300 000 руб.

154794 руб./м2

Следить за ценой


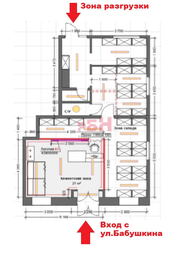
Площадь: 73.00 м2

Окупаемость, лет: 7.2


ПРОДАЕТСЯ ПОМЕЩЕНИЕ С ФЕДЕРАЛЬНЫМ АРЕНДАТОРОМ
Без комиссии для покупателей

- расположено в вблизи пересечения улиц Баума-Бабушкина;
- хорошая транспортная доступность, остановка общественного транспорта - 5 минут, до станции метро - 15;
- рядом располагается Детская больница, Зал акробатики, Частная школа. Через дорогу ЖК Квартал КЗ;
- общая площадь 73 м;
- высота потолков 3 метра;
- 2 входа, со стороны ул.Бабушкина и со двора;
- разрешенная мощность 10 кВт;
- арендатор: ПВЗ Вайлдберриз

Цена Объекта: 11 300 000 рублей
Окупаемость: 7,5 лет
Торг

Более подробную информацию уточняйте у наших специалистов
------------------------------------------------------
Регион Бизнес Недвижимость
Коммерческая недвижимость
Без комиссии для покупателей
Арт. 108644363

Специалист

Максимов Сергей

+7 996 186 65 63

или оставьте ваш номер,
и я перезвоню в течение 5 минут

Согласен с Политикой конфинденциальности и с Политикой оператора в отношении обработки персональных данных

Отправляя заявку вы соглашаетесь на обработку персональных данных

Похожие объекты

Посмотреть другие объявления в этой категории