ГлавнаяГотовый арендный бизнес — Володарского ул., 65

Володарского ул., 65,
2800.00 м2

180 000 000 руб.

64285 руб./м2

Следить за ценой


Площадь: 2800.00 м2

Окупаемость, лет: 10


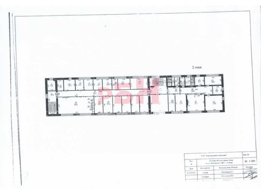
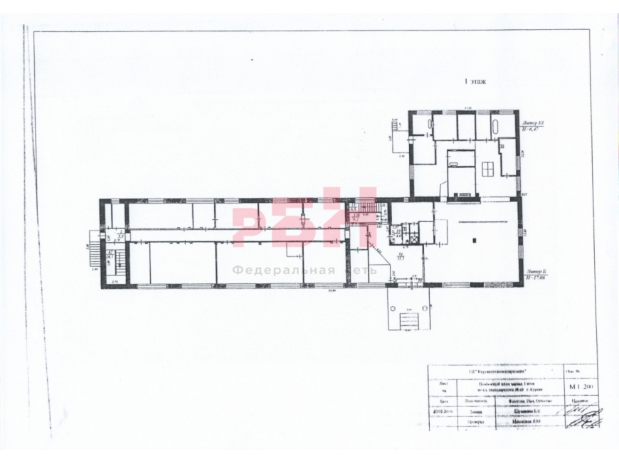
Продаётся офисное здание общей площадью 2800 м2 по адресу
г. Курган, ул. Володарского д.65
- 1й этаж (полезной площади 376 м2)
- 2й этаж 615 м2 (полезной площади 460 м2)
- 3й этаж 615 м2 (полезной площади 450 м2)
- 4й этаж 606 м2 (полезной площади 482 м2)
- цоколь 591 м2
- высота потолков 2,95м
- мощность 15 кВт
- кабинетная планировка
- круглосуточный доступ
- с/у на каждом этаже
- пожарный выход

Помещения сданы в аренду

Стоимость продажи 180 000 000 руб

По всем вопросам можете обращаться к вашему персональному менеджеру:
Андреев Степан - Консультант по коммерческой недвижимости.
"Регион Бизнес Недвижимость".
Арт. 127770839

Специалист

Андреев Степан

+7 996 186 65 63

или оставьте ваш номер,
и я перезвоню в течение 5 минут

Согласен с Политикой конфинденциальности и с Политикой оператора в отношении обработки персональных данных

Отправляя заявку вы соглашаетесь на обработку персональных данных

Похожие объекты

Посмотреть другие объявления в этой категории