Сыромолотова ул., 16, к А, 340.50 м 2

29 900 000 ₽
Площадь: 340.50м 2 Этаж 1 из 3
87 812 ₽/м 2
Голунова Ирина
Голунова Ирина
Специалист
или оставьте ваш номер,
и я перезвоню в течение 5 минут
Нажимая на кнопку, вы даете своё согласие на обработку персональных данных и соглашаетесь с политикой конфиденциальности
Предлагается в продажу ОТДЕЛЬНО СТОЯЩЕЕ ЗДАНИЕ в центре ЖБИ 340,5кв.м, 2007 г. постройки

Без комиссии для покупателей.

-Помещение расположено на пешеходном трафике в 100 м от остановок общественного транспорта, в 200 м от ТЦ Кировский
-в радиусе 500 метров постоянно проживает: 18 625 человек.
-развитая инфраструктура, рядом сетевые магазины, аптеки, плотная жилая застройка;
-отдельный вход с ул. Сыромолотова;
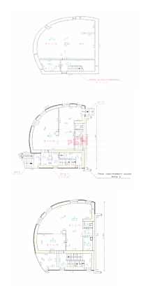
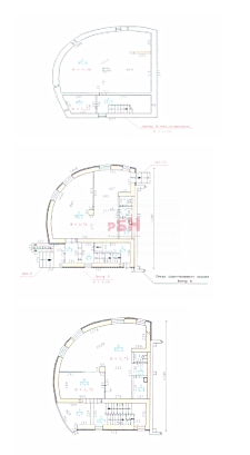
-общая площадь - 340,5кв.м.; подвал - площадь 88.3 кв. м., есть отдельный вход со стороны улицы; 1 этаж - 79 кв. м., 2 этаж - 84.2 кв. м., 3 этаж - 89 кв. м., отдельная входная группа, есть запасной выход для выгрузки;
-высота потолков на этажах – 2,75 м, в подвале 2,34 м;
-мощность – 35 кВт;
-здание оборудовано приточно-вытяжной вентиляцией;
-з/у в аренде , 1900 руб/мес, есть возможность выкупа;
-есть возможность достроить 4 этаж
-коммуникации центральные, на каждом этаже санитарные узлы
-парковка от здания на 6 машино-мест, дополнительно рядом со зданием расположена площадка для гостевой автостоянки, не огорожена.

Стоимость объекта: 29 900 000,00 (Двадцать девять миллионов девятьсот тысяч ) рублей.

Более подробную информацию уточняйте у наших специалистов.
------------------------------------------------------
"Регион Бизнес Недвижимость"
Коммерческая недвижимость
Без комиссии для покупателей
Арт. 71557137
Расположение

Сыромолотова ул., 16, к А

Похожие объекты

Посмотреть другие объявления в этой категории